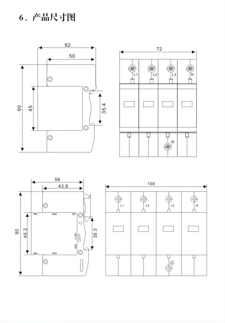
LY型电涌保护器